L’appartamento è costituito da un ampio soggiorno con un disimpegno che conduce alla cucina, ad un bagno e ad una camera da letto. Al piano soppalcato si trovano un bagno e due camere da letto. L’appartamento dispone inoltre di un balcone e di un’ampia terrazza con vista sulle mura.
Residenziale: 149.63 mq
Terrazza: 87.23 mq
Balcone: 18.23 mq

L’appartamento è costituito da un ampio soggiorno da cui si accede alla cucina; un disimpegno conduce ad un bagno e ad una camera da letto. Al piano soppalcato si trovano un bagno e due camere da letto.
L’appartamento dispone inoltre di un balcone e di un’ampia terrazza con vista sui giardini.
Residenziale: 149.63 mq
Terrazza: 76.37 mq
Balcone: 18.23 mq
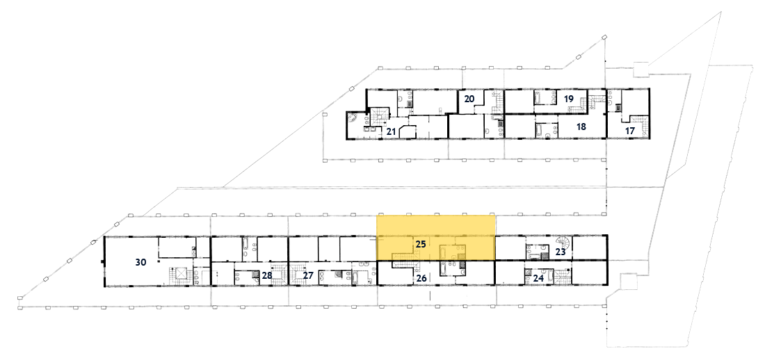
L’appartamento è costituito da un ampio soggiorno da cui si accede alla cucina; un disimpegno conduce ad un bagno e ad una camera da letto. Al piano soppalcato si trovano un bagno e due camere da letto.
L’appartamento dispone inoltre di un balcone e di un’ampia terrazza con vista sulle mura.
Residenziale: 158.30 mq
Terrazza: 44.04 mq
Balcone: 19.27 mq
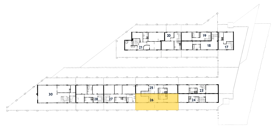
L’appartamento è costituito da un ampio soggiorno da cui si accede alla cucina; un disimpegno conduce ad un bagno e ad una camera da letto. Al piano soppalcato si trovano un bagno e due camere da letto. L’appartamento dispone inoltre di un balcone e di un’ampia terrazza con vista sui giardini.
Residenziale: 158.30 mq
Terrazza: 44.04 mq
Balcone: 20.53 mq