A pochi passi dal centro, all’ombra delle storiche mura venete a cui deve il nome sorge il complesso immobiliare Le Mura Venete.
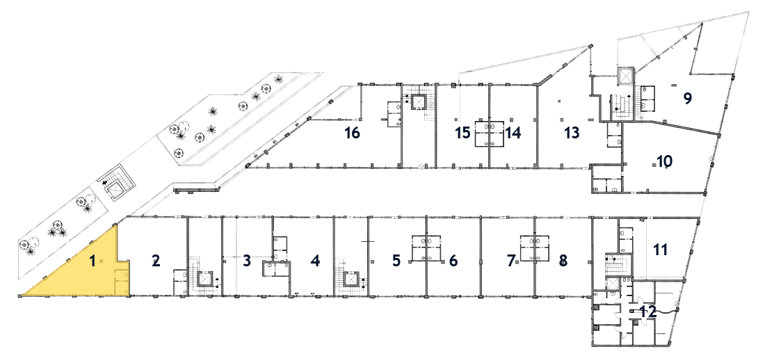
Il piano terra è riservato a spazi commerciali e direzionali, che si affacciano sulla galleria, importante punto di passaggio.
L’unità commerciale è costituita da un ampio open space e da un bagno con antibagno.
Le vetrine hanno un vetro antisfondamento, il pavimento è in gres porcellanato.
L’entrata è sulla piazza, con vista sui giardini pubblici.
Commerciale/direzionale: 91.11 mq
L’unità commerciale è costituita da un ampio open space e da un bagno con antibagno.
Le vetrine hanno un vetro antisfondamento, il pavimento è in gres porcellanato.
L’accesso è dalla galleria, importante punto di passaggio.
Commerciale/direzionale: 100.03 mq

L’unità commerciale è costituita da un ampio open space e da un bagno con antibagno.
Le vetrine hanno un vetro antisfondamento, il pavimento è in gres porcellanato.
L’accesso è dalla galleria, importante punto di passaggio.
Commerciale/direzionale: 95.45 mq
