Unità commerciali

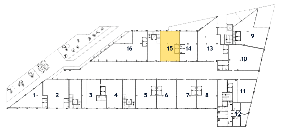
Unità commerciale 15 piano terra

L’unità commerciale è costituita da un ampio open space e da un bagno con antibagno.

Le vetrine hanno un vetro antisfondamento, il pavimento è in gres porcellanato.

L’accesso è dalla galleria, importante punto di passaggio.

Commerciale/direzionale: 101.77 mq

Ingrandimento planimetria unità commerciale 15

Unità commerciale 16 piano terra

L’unità commerciale è costituita da un grande open space e da un bagno con antibagno.

Le vetrine hanno un vetro antisfondamento, il pavimento è in gres porcellanato.

E’ possibile accedere sia dalla galleria, importante punto di passaggio, che dalla piazza.

Commerciale/direzionale: 158.68

Ingrandimento planimetria unità commerciale 16